Ter. residenziale in vendita

Zevio, Via Sacco
€ 260.000
1464 Mq 1464 Mq

Ter. residenziale in vendita

Zevio, Via Sacco

Descrizione annuncio

ZEVIO CENTRO

Comodità, versatilità e posizione strategica!
Un’opportunità per imprese o privati alla ricerca di un terreno in zona centrale e tranquilla, ideale per costruire più unità abitative o una villa singola di pregio con ampio giardino e piscina.

Superficie: 1.464 mq

Soluzione perfetta per:

Imprese di costruzione interessate a un intervento residenziale

Privati che desiderano realizzare una casa indipendente moderna con una o più unità con ampio scoperto e piscina.

Il terreno si trova in zona residenziale servita e riservata, a pochi passi dal centro di Zevio, in un contesto ideale per famiglie.

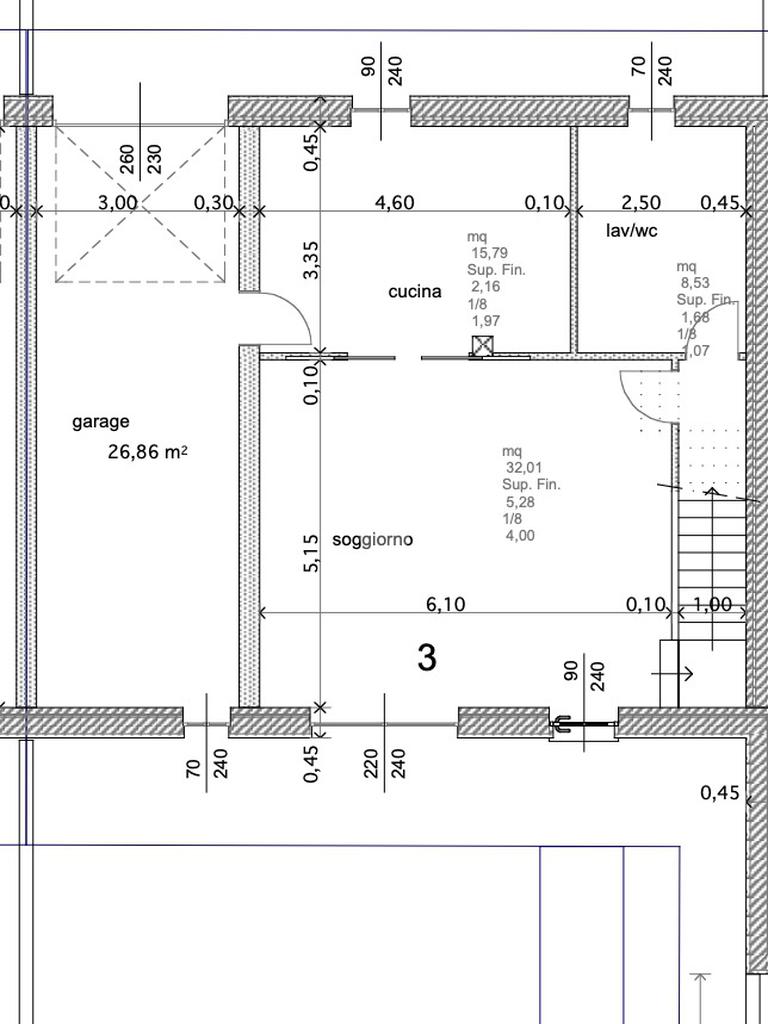
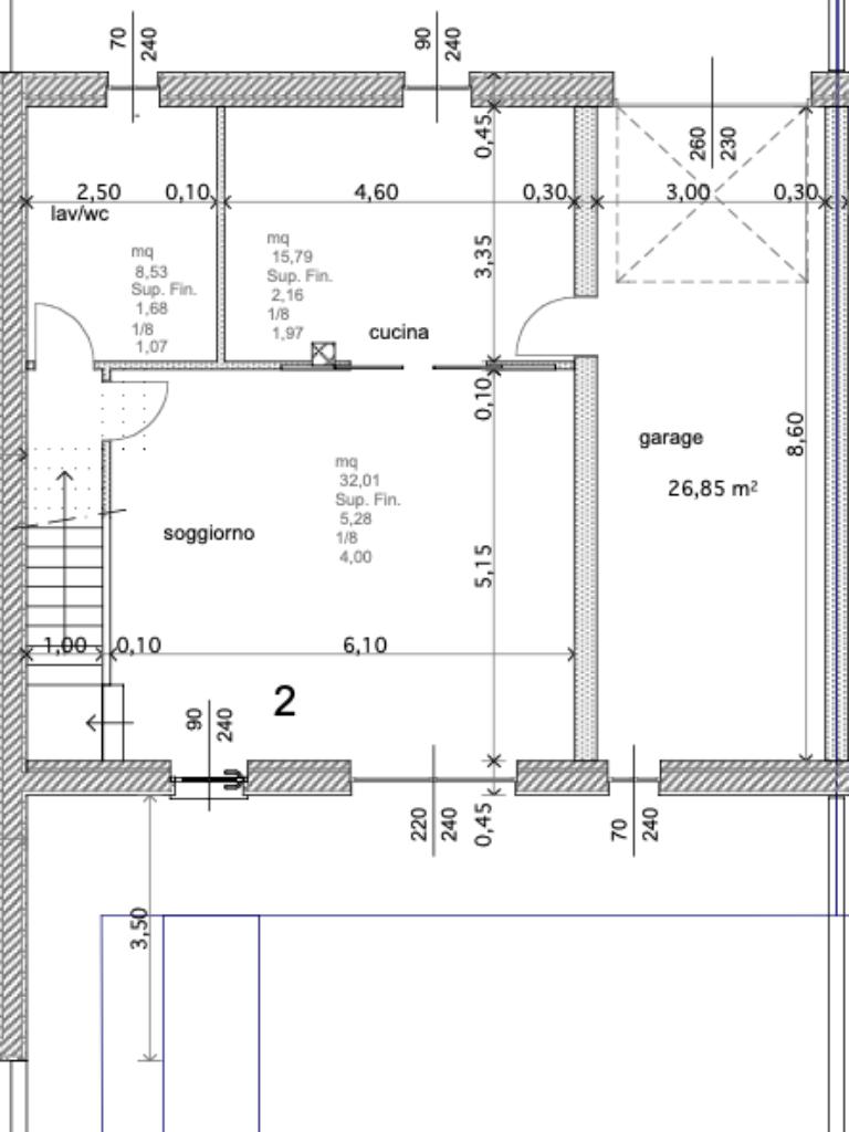
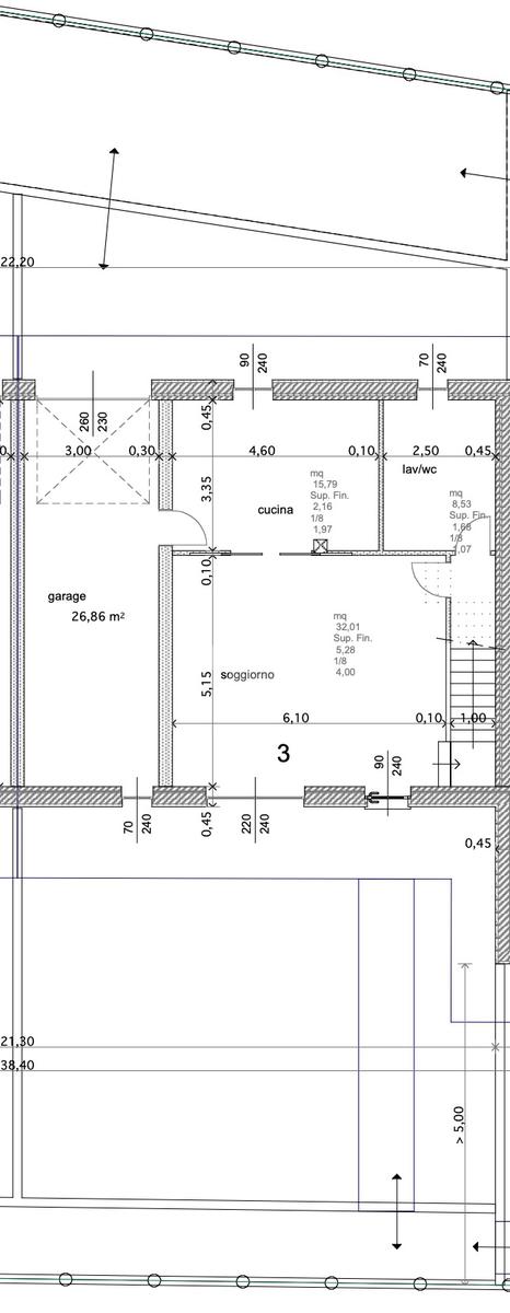
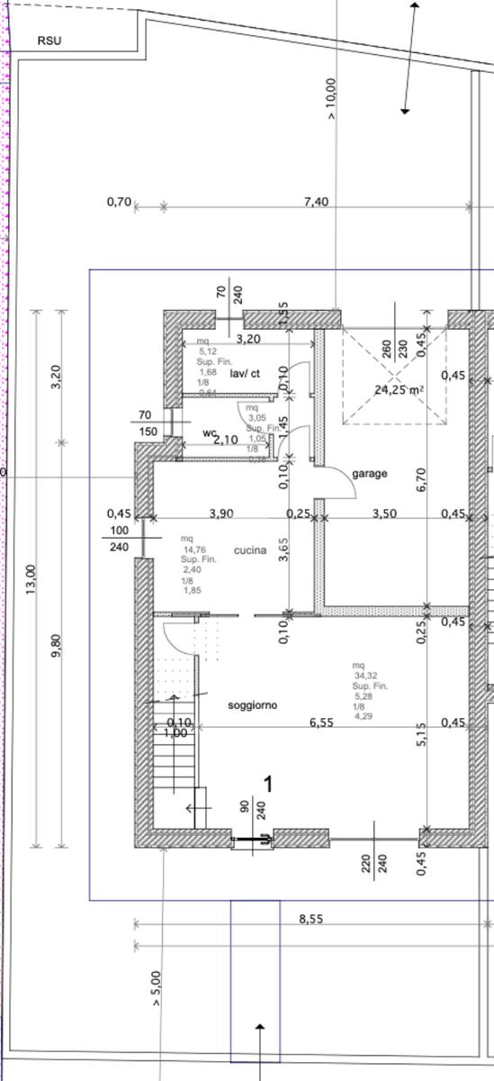
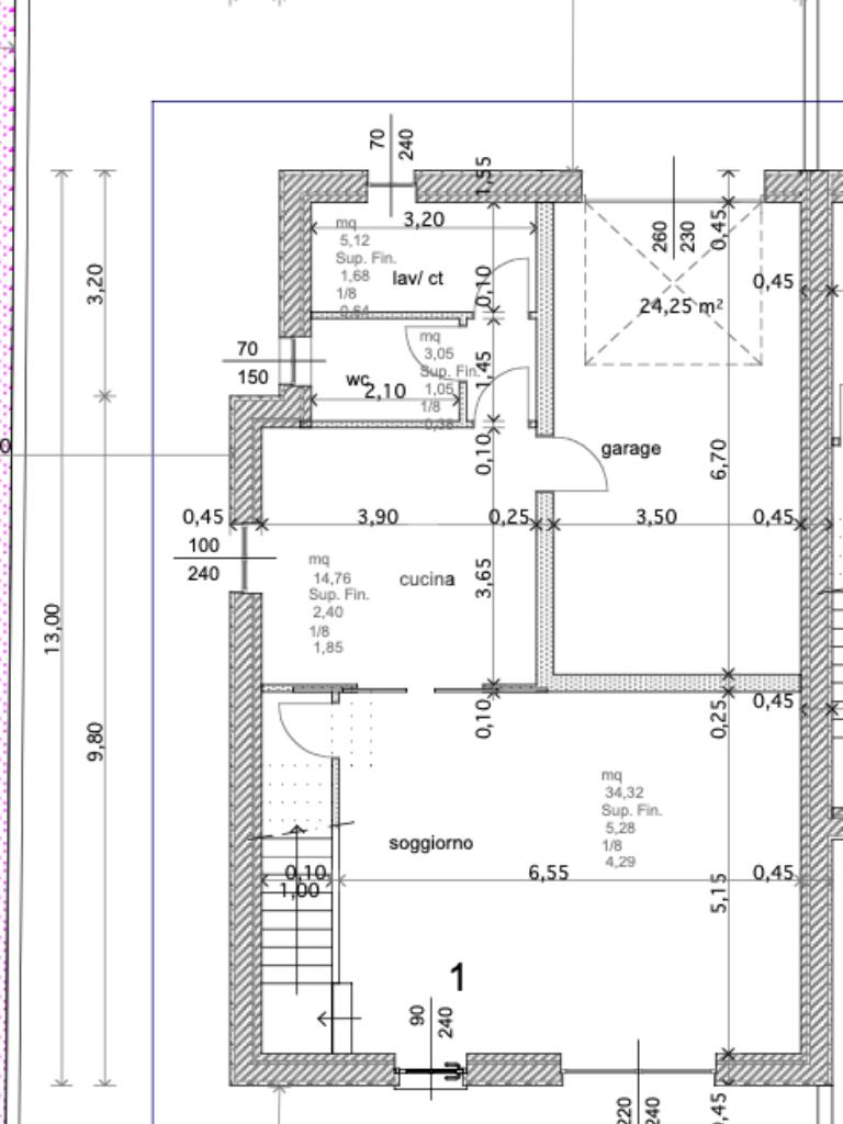
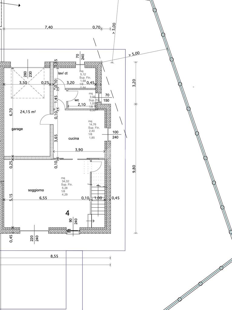
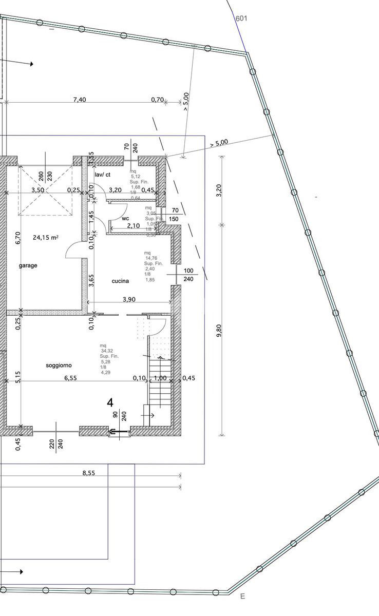
Possibilità di realizzare un progetto quadrifamiliare:

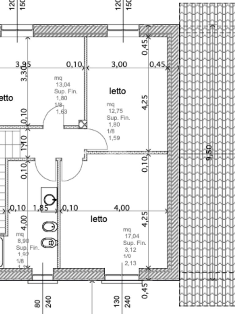
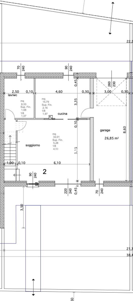
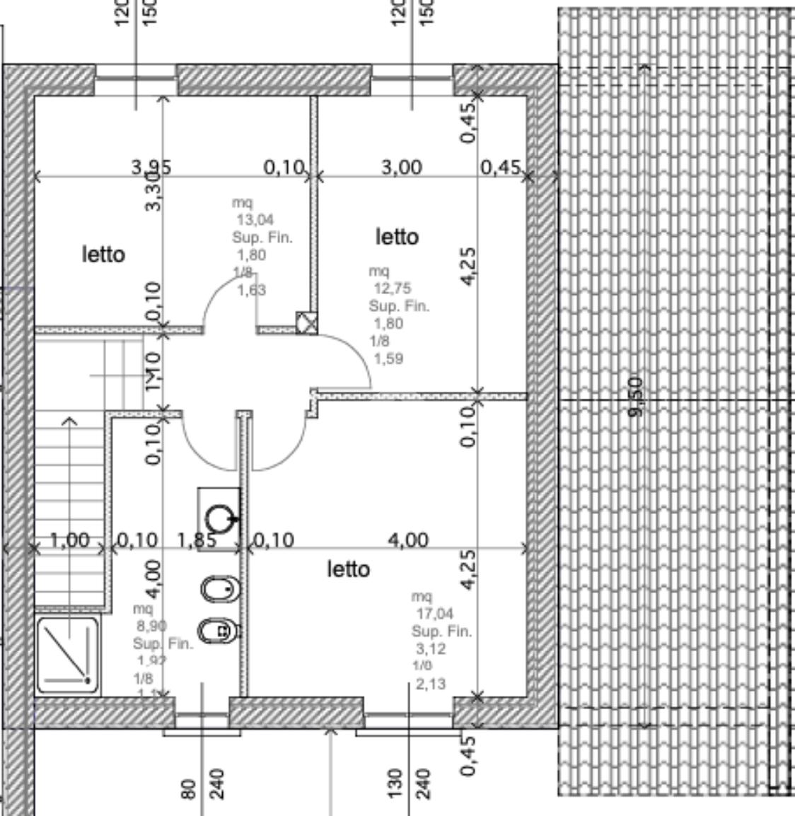
Vi è la possibilità di realizzare un progetto residenziale che prevede la costruzione di quattro porzioni di bifamiliare disposte su due livelli, ciascuna con giardino privato e ingresso indipendente:

Villetta d’angolo (x2):

Scoperto su tre lati

Piano terra: soggiorno, cucina abitabile, bagno e lavanderia.

Piano primo: tre camere matrimoniali e secondo bagno

Box auto singolo di ampia metratura.


Porzione centrale (x2):

Giardino fronte-retro

Piano terra: soggiorno, cucina abitabile, bagno/lavanderia.

Piano primo: camera matrimoniale, due camere doppie e secondo bagno

Garage doppio


Il progetto è in fase di approvazione.


Per ulteriori informazioni su oneri di urbanizzazione, analisi delle richieste già presenti nella nostra banca dati per le soluzioni che verranno realizzate e realtivo bosrino immobiliare e per maggiori dettagli sull'inziativa contattaci al 3784158687.

Una soluzione versatile e di grande valore nel cuore di Zevio!

Mostra tutto

Nelle vicinanze

Scuole Scuole
IC Zevio
450 m
Scuole
2,4 Km
Scuola materna
2,9 Km
Farmacia Farmacia
Farmacia della Madonna
290 m
Farmacia San Pietro e Paolo
520 m
Farmacia FMP
2,2 Km
Ospedali Ospedali
Ospedale Chiarenzi
660 m
Supermercati Supermercati
Grisi
360 m
Negozi Negozi
Zucchero Filato
300 m
Buon Pane
420 m
Penny Market
1,2 Km
Bar Bar
Milly
290 m
Liston 21
400 m
Centrale
450 m
Bar
650 m
White Es
2,4 Km
Ristoranti Ristoranti
Pizzeria Trattoria Marconi
360 m
Pastificio Zeviano
790 m
L'altro Carlo re
1,2 Km
Ristoranti
1,3 Km
Trattoria Andreoli
2,2 Km
Mostra tutto

Caratteristiche

Rif.:
61082124
Piano:
Terra
Libero:
Classe immobile:
Civile
Mostra tutto
Prezzo Prezzo
€ 260.000
Rata mutuo Rata mutuo
€ 1.198 / mese
Proponi il tuo prezzoProponi il tuo prezzo

Classe Energetica

Questo immobile è esente da classe energetica

Ti interessa visionare l'immobile?

Fissa un appuntamento  Fissa un appuntamento

Richiedi informazioni

* Questi campi sono obbligatori

Calcola il tuo mutuo

Semplice e senza impegno
Anticipo

( % )
Mutuo

( % )

pochi semplici passi

inserisci i tuoi dati
Questionario completato
Grazie per aver richiesto un appuntamento senza impegno con un nostro Consulente del Credito e Assicurativo.

Hai inserito correttamente tutti i dati necessari e a breve riceverai una e-mail con un link da convalidare per inviare i tuoi dati.
Affiliato
Immobiliare Valeggio Srl
Via Altichiero da Zevio, 5 37059 Zevio (VR)
Via Altichiero da Zevio, 5 37059 Zevio (VR)
Zona: Zevio
Mostra su mappa
Affiliato
Immobiliare Valeggio Srl
Via Altichiero da Zevio, 5 37059 Zevio (VR)

2025 Tecnocasa Franchising S.p.A. - P. IVA 08365160152 - Via Monte Bianco 60/A 20089 Rozzano (MI). Ogni agenzia ha un proprio titolare ed è autonoma. Privacy policy | Policy utilizzo | Cookie policy